防爆防火治理
fbfhzl
隔爆翻板阀是一种用于含有可燃性粉尘的管道上,允许管道内粉尘和气体单向通过,防止爆炸逆向传播的被动式单向隔爆阀。正确的使用隔爆翻板阀,可防止粉尘爆炸从下游管道传播至上游管道,从而有效的避免“二次爆炸”或“多次爆炸”的发生,防止粉尘爆炸事故扩大化,保护人身和财产的安全。
正常工作时
发生爆炸时
产品类型:
?重锤式
?磁吸式
技术特性:
?精巧设计:产品可竖直安装,有效避免积尘;压阻小
?最大泄爆压力pred,max:0.040MPa
?适用粉尘类型:可提供适用于不同类型粉尘的产品
?检测报告:通过国内第三方权威机构认证
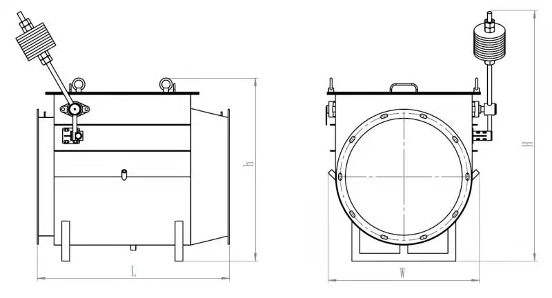
产品图片:
应用场景:
产品规格:
|
规格 |
长L (mm) |
宽W (mm) |
高h (mm) |
高H (mm) |
法兰外径 (mm) |
螺栓孔 |
重量 (kg) |
||
|
分度圆(mm) |
数量 |
直径(mm) |
|||||||
|
DN100 |
365 |
273 |
319 |
406 |
180 |
150 |
6 |
12 |
14 |
|
DN150 |
400 |
320 |
358 |
438 |
220 |
190 |
6 |
12 |
16 |
|
DN200 |
420 |
376 |
398 |
520 |
270 |
240 |
6 |
12 |
22 |
|
DN250 |
444 |
412 |
458 |
564 |
320 |
290 |
8 |
12 |
27 |
|
DN300 |
520 |
465 |
508 |
626 |
380 |
350 |
8 |
12 |
36 |
|
DN350 |
600 |
523 |
559 |
695 |
420 |
390 |
8 |
12 |
51 |
|
DN400 |
700 |
597 |
636 |
850 |
474 |
446 |
8 |
12 |
65 |
|
DN450 |
740 |
650 |
684 |
958 |
520 |
490 |
10 |
12 |
74 |
|
DN500 |
770 |
702 |
736 |
1035 |
580 |
550 |
10 |
12 |
86 |
|
DN550 |
860 |
742 |
763 |
1070 |
620 |
590 |
10 |
12 |
95 |
|
DN600 |
1000 |
869 |
933 |
1280 |
680 |
640 |
20 |
14 |
134 |
|
DN650 |
1050 |
910 |
1028 |
1420 |
740 |
700 |
20 |
14 |
217 |
|
DN700 |
1200 |
1009 |
1083 |
1436 |
850 |
800 |
20 |
14 |
259 |
|
DN750 |
1250 |
1075 |
1123 |
1530 |
840 |
800 |
20 |
14 |
296 |
|
DN800 |
1300 |
1120 |
1203 |
1700 |
950 |
900 |
20 |
18 |
361 |
|
DN850 |
1350 |
1170 |
1283 |
1790 |
980 |
930 |
20 |
18 |
388 |
|
DN900 |
1400 |
1220 |
1303 |
1850 |
1050 |
1000 |
20 |
22 |
424 |
|
DN950 |
1450 |
1265 |
1383 |
1890 |
1100 |
1050 |
20 |
22 |
479 |
|
DN1000 |
1500 |
1325 |
1433 |
1975 |
1150 |
1100 |
20 |
22 |
563 |
